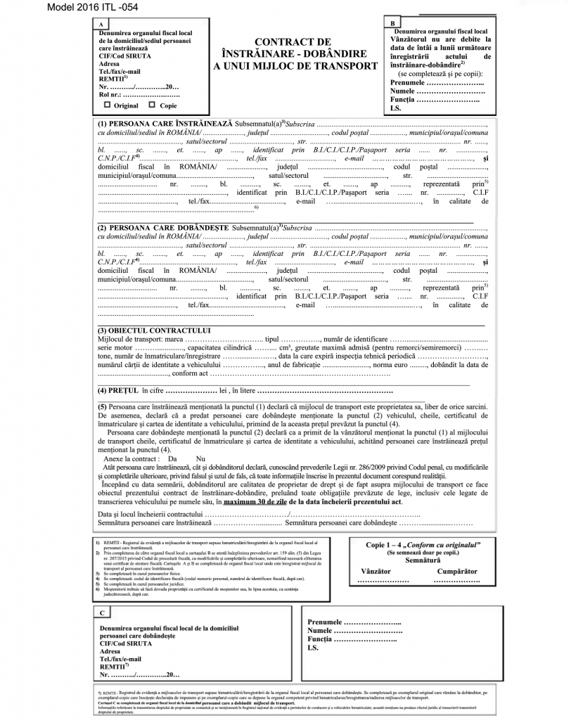
Noua legislatie fiscala prevede ca cei care isi vand masina trebuie sa depuna la organul fiscal local un contract de instrainare-dobandire.
Daca vanzatorul si cumparatorul au domiciliul in tara, persoana care vinde masina trebuie sa prezinte autoritatilor fiscale locale contractul original de instrainare-dobandire, împreună cu 4 copii certificate ale acestuia :
- exemplarul original rămâne la persoana care cumpără maşina;
- un exemplar certificat rămâne în arhiva organului fiscal local;
- un exemplar certificat rămâne la persoana care vinde maşina;
- un exemplar certificat, pe care se înscrie şi de către organul fiscal de la domiciliul cumpărătorului numărul de înregistrare din Registrul de evidenţă a mijloacelor de transport supuse înmatriculării/înregistrării, se depune la Serviciul Public Comunitar Permise de Conducere şi Înmatriculare a Vehiculelor;
- un exemplar certificat se depune la organul fiscal local unde îşi are domiciliul fiscal persoana care cumpără maşina.
Citeste si : Acte necesare inmatriculare masina
Practic procedura de vanzare cumparare a fost simplificata, eliminandu-se Fisa de inmatriculare si certificatul fiscal si introducandu-se in loc contractul de instrainare-dobandire.
Iata cum arata un model de contract de instrainare-dobandire


